Appartamento in vendita, Via Cascina Tamburina, 4, Usmate Velate

Appartamento in vendita, Via Cascina Tamburina, 4, Usmate Velate

303.000 €
213 m2
Prossima asta 22/04/2026
Codice
297.2023.L4.220426 MONZA
Città/Comune
Usmate Velate
Categoria
Appartamento
Locali
6
Piano
Terra
Classe energetica
G
Stato Immobile
Buono
Grado
Medio
Lati Liberi
1
Arredi
Non Arredato
Tipo Cucina
Abitabile
Riscaldamento
Autonomo
Tipo Impianto
Radiatori
Fonte Energetica
Metano
Infissi
Legno
Accesso Disabili
No
Riferimento 297.2023.L4.220426 MONZA
Trattasi di vendita giudiziaria con assistenza di A.P.I. Srl, studio di riferimento per consulenza e gestione di acquisto in AstaGiudiziaria e Pre-Asta.

CONSIGLIABILE
Rivolgersi al mercato delle Esecuzioni Immobiliari, seguendo un protocollo Legale ed Etico, farsi affiancare da A.P.I S.r.l. Delegati Procuratori, lo studio di riferimento per le Procedure in Asta Giudiziaria ed Acquisti in Pre-Asta

____________________________________________________
UBICAZIONE
Via Cascina Tamburina 4 – USMATE VELATE (MB)
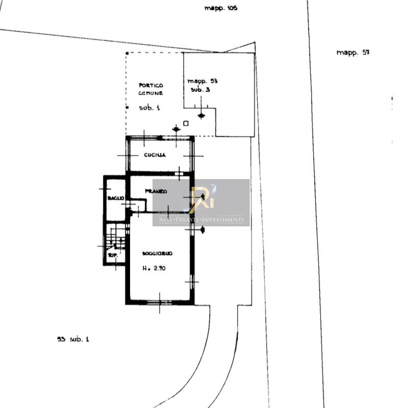
APPARTAMENTO a USMATE VELATE CASCINA TAMBURINA snc, della superficie commerciale di 213,00 mq per la quota di 1/1 di piena proprietà posto su piano terra, primo e secondo. L'unità è divisa al piano terra in ingresso su soggiorno, pranzo, cucina e bagno, oltre corpo scale che serve i vari piani. Al piano primo si divide in ingresso su corridoio di distribuzione, tre vani principali oltre ripostiglio e bagno.
____________________________________________________

POLIZZA ASSICURATIVA
“L’immobile è assicurabile in AstaGiudiziaria” - Acquista assicurando il tuo immobile, chiedi un preventivo per una polizza assicurativa contro furto e danni alle migliori Compagnie in contatto con il nostro studio, le quali sapranno fornire le migliori soluzioni.

Per un acquisto sicuro e sereno garantisci integralmente il trasferimento dell'immobile nella sua integrità.

____________________________________________________


ASTE PREASTE INVESTIMENTI srl

Opera con i propri clienti in un modo totalmente personalizzato, i nostri professionisti sono regolarmente iscritti, abilitati all'esercizio della professione, non semplici collaboratori, ma consulenti a trecentosessanta gradi che potranno consigliarvi, accompagnarvi e permettervi di raggiungere gli obiettivi che “vi siete prefissati”.

Saranno con voi dalle prime fasi fino alla consegna delle chiavi dell’immobile e saranno il vostro riferimento per qualunque aspetto inerente l'acquisto e la gestione del bene.

Forza, Cortesia, Professionalità, Esperienza, Solidità, Trasparenza sono solo alcune delle nostre caratteristiche e siamo certi di saper fare la differenza nel mercato immobiliare delle aste, in quanto per raggiungere lo scopo dei nostri assistiti rappresentiamo la "determinazione e sicurezza”.

____________________________________________________


ASTE PREASTE INVESTIMENTI Srl

Opera sulle basi di criteri e di linee guida fortemente improntati sull’analisi e sulla verifica costante della Struttura e dei Processi Organizzativi ad essa correlati, operando sempre con sguardo critico e attento al mercato immobiliare. Siamo sempre interessati a valutare figure professionali che possano essere compatibili con la nostra missione e obbiettivi.

ASTE PREASTE INVESTIMENTI Srl

È una struttura organizzata che stabilisce il percorso agendo per raggiungere obiettivi ambiziosi, e in quest’ottica poco spazio resta a chi, volendone far parte, non abbia reali e dimostrate capacità. “La qualità

del servizio al cliente” è uno dei nostri punti di forza e pertanto, ogni sorta di collaborazione è strettamente correlata ad un livello di comunicazione e competenza il cui standard è qualitativamente l’eccellente.

ASTE PREASTE INVESTIMENTI srl
Via Soperga 14a Milano (MI) cancelleria@apisrl.org
P. Iva / Codice Fiscale 15908761008 pec: apisrl@pecaruba.it
Capitale Sociale euro 10.000,00 int.versato


Mappa

Via Cascina Tamburina 4, Usmate Velate (MB)

Condividi

Richiedi informazioni

Invia
interagisci con noi interagisci con noi Cookie preference