Casa singola in vendita, Via padre francesco guerra, 17, Verghereto

Casa singola in vendita, Via padre francesco guerra, 17, Verghereto

92.250 €
247 m2
Prossima asta 18/12/2025
Codice
160.2023.181225 FORLÌ
Città/Comune
Verghereto
Categoria
Casa singola
Locali
2
Piano
Terra
Classe energetica
G
Stato Immobile
Buono
Grado
Medio
Lati Liberi
1
Arredi
Non Arredato
Tipo Cucina
Abitabile
Riscaldamento
Autonomo
Tipo Impianto
Radiatori
Fonte Energetica
Metano
Infissi
Legno
Accesso Disabili
No
AstaGiudiziaria - A.P.I.Srl
Riferimento 160.2023.181225 FORLÌ
Trattasi di Vendita Giudiziaria con l’Ausilio di A.P.I. Srl, studio di riferimento per le acquisizioni degli immobili in AstaGiudiziaria e acquisti in Pre-Asta.
Rivolgersi al mercato delle Esecuzioni Immobiliari, seguendo il corretto protocollo Legale.
 
____________________________________________________
 
UBICAZIONE
Verghereto, Via padre francesco guerra 17
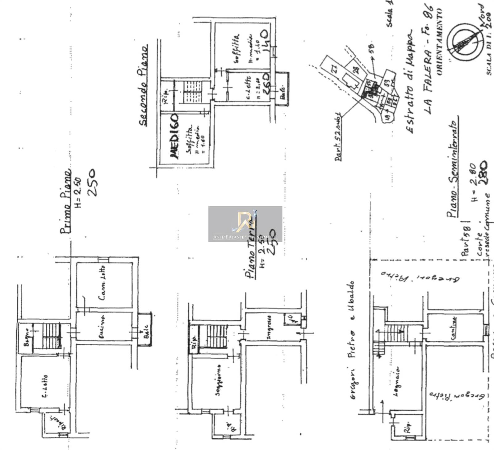
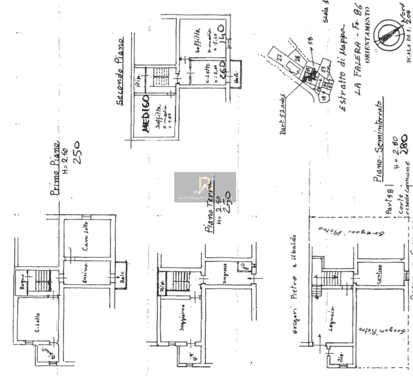
appartamento su 4 livelli; Il p. seminterrato è costituito da vano legnaia. Il p. terra è costituito da ingresso, soggiorno/pranzo con camino, cucina (ricavata nel vano ripostiglio) e ripostiglio. Il p. 1 è composto da ballatoio, ripostiglio, camera con bagno, soggiorno/camera con balcone e una camera da letto. Il p.2 è composto da ballatoio, ripostiglio (trasformato in servizio igienico), soffitta, disimpegno, camera con balcone e ulteriore soffitta.
____________________________________________________
 
 
POLIZZA ASSICURATIVA
“L’immobile è assicurabile in AstaGiudiziaria” - Acquista assicurando il tuo immobile, chiedi un preventivo per una polizza assicurativa contro furto e danni alle migliori Compagnie in contatto con il nostro studio, le quali sapranno fornire le migliori soluzioni.
 
____________________________________________________
 
 
ASTE PREASTE INVESTIMENTI srl
 
Opera con i propri clienti in un modo totalmente personalizzato, i nostri professionisti sono regolarmente iscritti, abilitati all'esercizio della professione, non semplici collaboratori, ma Consulenti Delegati Procuratori che potranno accompagnarvi e permettervi di raggiungere gli obiettivi che “vi siete prefissati”.
Saranno con voi dalle prime fasi fino alla consegna dell’immobile e saranno il vostro riferimento per qualunque aspetto inerente l'acquisto e la gestione del bene.
Forza, Cortesia, Professionalità, Esperienza, Solidità, Trasparenza sono solo alcune delle nostre caratteristiche e siamo certi di saper fare la differenza nel mercato immobiliare delle aste, in quanto per raggiungere lo scopo dei nostri assistiti rappresentiamo la "determinazione e sicurezza”.
 
____________________________________________________
 
 
ASTE PREASTE INVESTIMENTI Srl
Opera sulle basi di criteri e di linee guida fortemente improntati sull’analisi e sulla verifica costante della Struttura e dei Processi Organizzativi ad essa correlati, operando sempre con sguardo critico e attento al mercato immobiliare. Siamo sempre interessati a valutare figure professionali che possano essere compatibili con la nostra missione e obbiettivi.
 
 
ASTE PREASTE INVESTIMENTI Srl
È una struttura organizzata che stabilisce il percorso agendo per raggiungere obiettivi ambiziosi, e in quest’ottica poco spazio resta a chi, volendone far parte, non abbia reali e dimostrate capacità. “La qualità del servizio al cliente” è uno dei nostri punti di forza e pertanto, ogni sorta di collaborazione è strettamente correlata ad un livello di comunicazione e competenza il cui standard è qualitativamente l’eccellenza.
 
ASTE PREASTE INVESTIMENTI srl
 

Video

Mappa

Via padre francesco guerra 17, Verghereto (FC)

Condividi

Richiedi informazioni

Invia
interagisci con noi interagisci con noi Cookie preference