Aste Preaste Investimenti Srl

Piazza IV Novembre, 4
20124 Milano MI

C. +39 392 9999666 / +39 392 7606126
E. cancelleria@apisrl.org / apisrl@pecaruba.it

P.IVA 15908761008

VIESTE - Stabile / Palazzo
Codice 356.2021.L8.280526 FOGGIA
Prezzo 107.300 €
Classe energetica G
Camere 12
Bagni 6
Metri quadri 471
Locali 180
Piano Terra
Stato Immobile Buono
Grado Medio
Lati Liberi 1
Riscaldamento Autonomo
Tipo Impianto Radiatori
Fonte Energetica Metano
Infissi Legno
Accesso Disabili No

DESCRIZIONE:

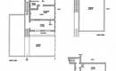
Sei unità in corso di costruzione. Trattasi di sei locali al piano seminterrato rispettivamente di mq: 84, 68, 80, 84, 68, 87.

AstaGiudiziaria - A.P.I.Srl
Riferimento 356.2021.L8.280526 FOGGIA
Trattasi di Vendita Giudiziaria con l’Ausilio di A.P.I. Srl, studio di riferimento per le acquisizioni degli immobili in AstaGiudiziaria e acquisti in Pre-Asta.
Rivolgersi al mercato delle Esecuzioni Immobiliari, seguendo il corretto protocollo Legale.

____________________________________________________


POLIZZA ASSICURATIVA
“L’immobile è assicurabile in AstaGiudiziaria” - Acquista assicurando il tuo immobile, chiedi un preventivo per una polizza assicurativa contro furto e danni alle migliori Compagnie in contatto con il nostro studio, le quali sapranno fornire le migliori soluzioni.

____________________________________________________


ASTE PREASTE INVESTIMENTI srl

Opera con i propri clienti in un modo totalmente personalizzato, i nostri professionisti sono regolarmente iscritti, abilitati all'esercizio della professione, non semplici collaboratori, ma Consulenti Delegati Procuratori che potranno accompagnarvi e permettervi di raggiungere gli obiettivi che “vi siete prefissati”.
Saranno con voi dalle prime fasi fino alla consegna dell’immobile e saranno il vostro riferimento per qualunque aspetto inerente l'acquisto e la gestione del bene.
Forza, Cortesia, Professionalità, Esperienza, Solidità, Trasparenza sono solo alcune delle nostre caratteristiche e siamo certi di saper fare la differenza nel mercato immobiliare delle aste, in quanto per raggiungere lo scopo dei nostri assistiti rappresentiamo la "determinazione e sicurezza”.

____________________________________________________


ASTE PREASTE INVESTIMENTI Srl
Opera sulle basi di criteri e di linee guida fortemente improntati sull’analisi e sulla verifica costante della Struttura e dei Processi Organizzativi ad essa correlati, operando sempre con sguardo critico e attento al mercato immobiliare. Siamo sempre interessati a valutare figure professionali che possano essere compatibili con la nostra missione e obbiettivi.


ASTE PREASTE INVESTIMENTI Srl
È una struttura organizzata che stabilisce il percorso agendo per raggiungere obiettivi ambiziosi, e in quest’ottica poco spazio resta a chi, volendone far parte, non abbia reali e dimostrate capacità. “La qualità del servizio al cliente” è uno dei nostri punti di forza e pertanto, ogni sorta di collaborazione è strettamente correlata ad un livello di comunicazione e competenza il cui standard è qualitativamente l’eccellenza.

ASTE PREASTE INVESTIMENTI srl

La presente offerta non costituisce proposta contrattuale e deve pertanto ritenersi meramente illustrativa.
Qr Code