Appartamento in vendita, Via Cherubini, 10, Canicattì

Appartamento in vendita, Via Cherubini, 10, Canicattì

62.787 €
226 m2
Prossima asta 12/02/2026
Codice
160.2018.L3.120226 AGRIGENTO
Città/Comune
Canicattì
Categoria
Appartamento
Locali
6
Piano
3
Classe energetica
G
Stato Immobile
Buono
Grado
Medio
Lati Liberi
1
Arredi
Non Arredato
Tipo Cucina
Abitabile
Riscaldamento
Autonomo
Tipo Impianto
Radiatori
Fonte Energetica
Metano
Infissi
Legno
Accesso Disabili
No
AstaGiudiziaria - A.P.I.Srl
Riferimento 160.2018.L3.120226 AGRIGENTO
Trattasi di Vendita Giudiziaria con l’Ausilio di A.P.I. Srl, studio di riferimento per le acquisizioni degli immobili in AstaGiudiziaria e acquisti in Pre-Asta.
Rivolgersi al mercato delle Esecuzioni Immobiliari, seguendo il corretto protocollo Legale.

____________________________________________________


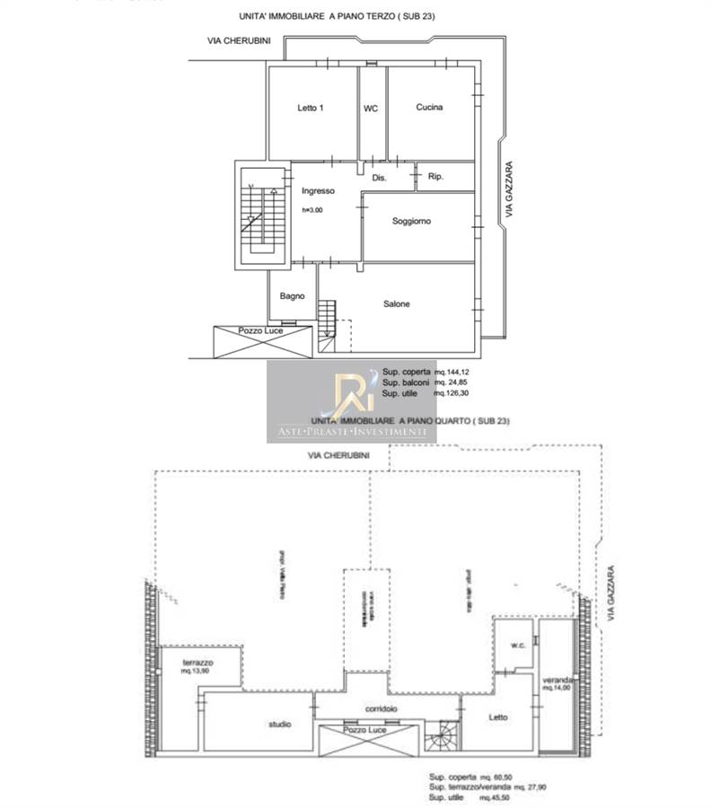
UBICAZIONE
Via Cherubini n. 10 – CANICATTI’ (AG)
Abitazione di tipo civile sita in Canicattì (AG), Via Cherubini n. 10, posto al piano terzo e quarto, senza ascensore, con annesso magazzino/box al piano terra con accesso dal civico n. 12. La superficie coperta lorda vendibile è di mq 144,12 al piano terzo e mq 60,50 al piano quarto; mentre del magazzino/box mq 45,70.____________________________________________________

POLIZZA ASSICURATIVA
“L’immobile è assicurabile in AstaGiudiziaria” - Acquista assicurando il tuo immobile, chiedi un preventivo per una polizza assicurativa contro furto e danni alle migliori Compagnie in contatto con il nostro studio, le quali sapranno fornire le migliori soluzioni.

____________________________________________________


ASTE PREASTE INVESTIMENTI srl

Opera con i propri clienti in un modo totalmente personalizzato, i nostri professionisti sono regolarmente iscritti, abilitati all'esercizio della professione, non semplici collaboratori, ma Consulenti Delegati Procuratori che potranno accompagnarvi e permettervi di raggiungere gli obiettivi che “vi siete prefissati”.
Saranno con voi dalle prime fasi fino alla consegna dell’immobile e saranno il vostro riferimento per qualunque aspetto inerente l'acquisto e la gestione del bene.
Forza, Cortesia, Professionalità, Esperienza, Solidità, Trasparenza sono solo alcune delle nostre caratteristiche e siamo certi di saper fare la differenza nel mercato immobiliare delle aste, in quanto per raggiungere lo scopo dei nostri assistiti rappresentiamo la "determinazione e sicurezza”.

____________________________________________________


ASTE PREASTE INVESTIMENTI Srl
Opera sulle basi di criteri e di linee guida fortemente improntati sull’analisi e sulla verifica costante della Struttura e dei Processi Organizzativi ad essa correlati, operando sempre con sguardo critico e attento al mercato immobiliare. Siamo sempre interessati a valutare figure professionali che possano essere compatibili con la nostra missione e obbiettivi.


ASTE PREASTE INVESTIMENTI Srl
È una struttura organizzata che stabilisce il percorso agendo per raggiungere obiettivi ambiziosi, e in quest’ottica poco spazio resta a chi, volendone far parte, non abbia reali e dimostrate capacità. “La qualità del servizio al cliente” è uno dei nostri punti di forza e pertanto, ogni sorta di collaborazione è strettamente correlata ad un livello di comunicazione e competenza il cui standard è qualitativamente l’eccellenza.

ASTE PREASTE INVESTIMENTI srl


Video

Mappa

Via Cherubini 10 , Canicattì (AG)

Condividi

Richiedi informazioni

Invia

Ti consigliamo anche

69.750 €
Appartamento in vendita, via San Biagio, 10, Canicattì
2 Camere 2 Bagni 150 m2
47.735 €
Appartamento in vendita, Via Cherubini, 10, Canicattì
3 Camere 2 Bagni 152 m2
interagisci con noi interagisci con noi Cookie preference