AstaGiudiziaria - A.P.I.Srl
Riferimento 49.2019.250226 AREZZO
Trattasi di Vendita Giudiziaria con l’Ausilio di A.P.I. Srl, studio di riferimento per le acquisizioni degli immobili in AstaGiudiziaria e acquisti in Pre-Asta.
Rivolgersi al mercato delle Esecuzioni Immobiliari, seguendo il corretto protocollo Legale.
____________________________________________________
UBICAZIONE
Via Borgopiano n. 122 – CASTEL SAN NICCOLO’ (AR)
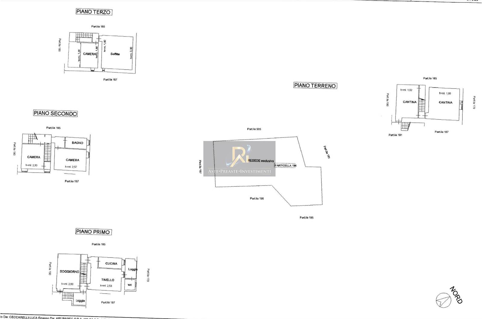
Porzione di fabbricato residenziale ubicato in Castel San Niccolò (AR) Via Borgopiano n. 122 Frazione Cetica, composto da n. 6 vani, oltre n. 6 vani accessori, disposto su più livelli (piano terreno, primo, secondo e terzo), integrato da resede esterno esclusivo ad uso piazzale e verde di circa mq. 140 posto nelle vicinanze del fabbricato, oltre terreni a uso agricolo e boschivo con superficie totale di circa ha. 1.85.50. Così disposto_
- piano terra: due cantine;
- piano primo: soggiorno, tinello, cucina, wc;
- piano secondo: due camere e un bagno;
- piano terzo: camera e soffitta.
____________________________________________________
POLIZZA ASSICURATIVA
“L’immobile è assicurabile in AstaGiudiziaria” - Acquista assicurando il tuo immobile, chiedi un preventivo per una polizza assicurativa contro furto e danni alle migliori Compagnie in contatto con il nostro studio, le quali sapranno fornire le migliori soluzioni.
____________________________________________________
ASTE PREASTE INVESTIMENTI srl
Opera con i propri clienti in un modo totalmente personalizzato, i nostri professionisti sono regolarmente iscritti, abilitati all'esercizio della professione, non semplici collaboratori, ma Consulenti Delegati Procuratori che potranno accompagnarvi e permettervi di raggiungere gli obiettivi che “vi siete prefissati”.
Saranno con voi dalle prime fasi fino alla consegna dell’immobile e saranno il vostro riferimento per qualunque aspetto inerente l'acquisto e la gestione del bene.
Forza, Cortesia, Professionalità, Esperienza, Solidità, Trasparenza sono solo alcune delle nostre caratteristiche e siamo certi di saper fare la differenza nel mercato immobiliare delle aste, in quanto per raggiungere lo scopo dei nostri assistiti rappresentiamo la "determinazione e sicurezza”.
____________________________________________________
ASTE PREASTE INVESTIMENTI Srl
Opera sulle basi di criteri e di linee guida fortemente improntati sull’analisi e sulla verifica costante della Struttura e dei Processi Organizzativi ad essa correlati, operando sempre con sguardo critico e attento al mercato immobiliare. Siamo sempre interessati a valutare figure professionali che possano essere compatibili con la nostra missione e obbiettivi.
ASTE PREASTE INVESTIMENTI Srl
È una struttura organizzata che stabilisce il percorso agendo per raggiungere obiettivi ambiziosi, e in quest’ottica poco spazio resta a chi, volendone far parte, non abbia reali e dimostrate capacità. “La qualità del servizio al cliente” è uno dei nostri punti di forza e pertanto, ogni sorta di collaborazione è strettamente correlata ad un livello di comunicazione e competenza il cui standard è qualitativamente l’eccellenza.
ASTE PREASTE INVESTIMENTI srl
Mappa
Via Cetica Borgopiano 122 , Castel San Niccolò (AR)