Appartamento in vendita, Via C. Pisacane, 13, Latina

Appartamento in vendita, Via C. Pisacane, 13, Latina

115.847 €
130 m2
Prossima asta 18/12/2025
Codice
3.2024.L78.181225 ROMA
Città/Comune
Latina
Categoria
Appartamento
Locali
5
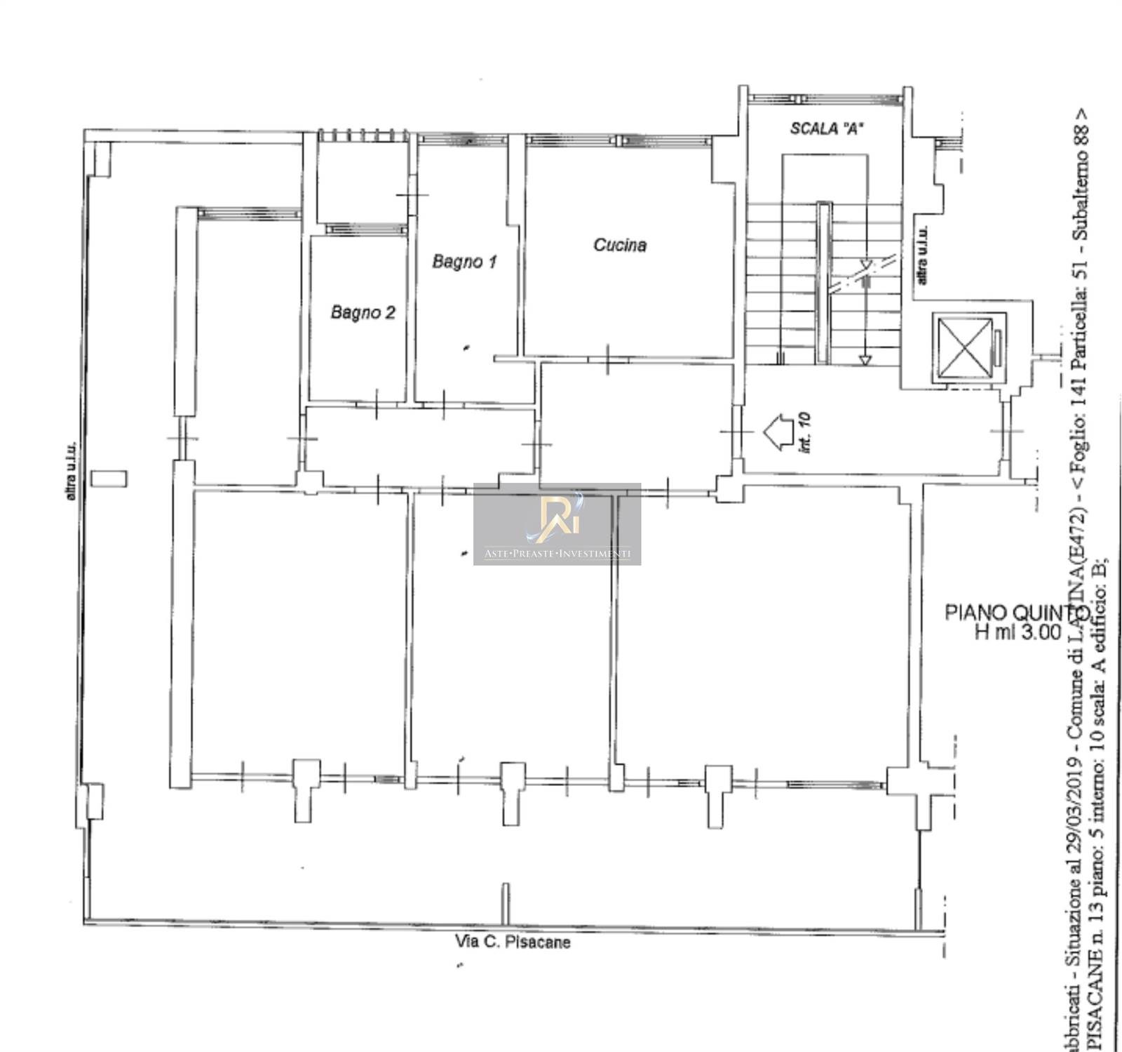
Piano
5
Classe energetica
G
Stato Immobile
Buono
Grado
Medio
Tipo Cucina
Abitabile
Riscaldamento
Autonomo
Fonte Energetica
Metano
AstaGiudiziaria - A.P.I.Srl
Riferimento 3.2024.L78.181225 ROMA
Trattasi di Vendita Giudiziaria con l’Ausilio di A.P.I. Srl, studio di riferimento per le acquisizioni degli immobili in AstaGiudiziaria e acquisti in Pre-Asta.
Rivolgersi al mercato delle Esecuzioni Immobiliari, seguendo il corretto protocollo Legale.

____________________________________________________


UBICAZIONE
Via Carlo Pisacane, 13, 04100 Latina LT
Appartamento piano quinto, composto da soggiorno, cucina, tre camere e due bagni.
_____________________________________________

POLIZZA ASSICURATIVA
“L’immobile è assicurabile in AstaGiudiziaria” - Acquista assicurando il tuo immobile, chiedi un preventivo per una polizza assicurativa contro furto e danni alle migliori Compagnie in contatto con il nostro studio, le quali sapranno fornire le migliori soluzioni.

____________________________________________________


ASTE PREASTE INVESTIMENTI srl

Opera con i propri clienti in un modo totalmente personalizzato, i nostri professionisti sono regolarmente iscritti, abilitati all'esercizio della professione, non semplici collaboratori, ma Consulenti Delegati Procuratori che potranno accompagnarvi e permettervi di raggiungere gli obiettivi che “vi siete prefissati”.
Saranno con voi dalle prime fasi fino alla consegna dell’immobile e saranno il vostro riferimento per qualunque aspetto inerente l'acquisto e la gestione del bene.
Forza, Cortesia, Professionalità, Esperienza, Solidità, Trasparenza sono solo alcune delle nostre caratteristiche e siamo certi di saper fare la differenza nel mercato immobiliare delle aste, in quanto per raggiungere lo scopo dei nostri assistiti rappresentiamo la "determinazione e sicurezza”.

____________________________________________________

ASTE PREASTE INVESTIMENTI Srl
Opera sulle basi di criteri e di linee guida fortemente improntati sull’analisi e sulla verifica costante della Struttura e dei Processi Organizzativi ad essa correlati, operando sempre con sguardo critico e attento al mercato immobiliare. Siamo sempre interessati a valutare figure professionali che possano essere compatibili con la nostra missione e obbiettivi.


ASTE PREASTE INVESTIMENTI Srl
È una struttura organizzata che stabilisce il percorso agendo per raggiungere obiettivi ambiziosi, e in quest’ottica poco spazio resta a chi, volendone far parte, non abbia reali e dimostrate capacità. “La qualità del servizio al cliente” è uno dei nostri punti di forza e pertanto, ogni sorta di collaborazione è strettamente correlata ad un livello di comunicazione e competenza il cui standard è qualitativamente l’eccellenza.

ASTE PREASTE INVESTIMENTI srl

Video

Mappa

Via C. Pisacane 13, Latina (LT)

Condividi

Richiedi informazioni

Invia

Ti consigliamo anche

131.456 €
Appartamento in vendita, Via dei Gerani, 6, Latina
2 Camere 2 Bagni 151 m2
89.772 €
Appartamento in vendita, Via Carlo Pisacane, 33, Latina
2 Camere 2 Bagni 104 m2
interagisci con noi interagisci con noi Cookie preference