Appartamento in vendita, Via Saturnino Piattella, 42, Latina

Appartamento in vendita, Via Saturnino Piattella, 42, Latina

150.091 €
112,53 m2
Prossima asta 10/12/2025
Codice
542.2024.101225 LATINA
Città/Comune
Latina
Categoria
Appartamento
Locali
5
Piano
4
Classe energetica
G
Stato Immobile
Buono
Grado
Medio
Arredi
Non Arredato
Tipo Cucina
Abitabile
Riscaldamento
Autonomo
Fonte Energetica
Metano
Accesso Disabili
No
Accessori
Ascensore
AstaGiudiziaria - A.P.I.Srl
Riferimento 542.2024.101225 LATINA
Trattasi di Vendita Giudiziaria con l’Ausilio di A.P.I. Srl, studio di riferimento per le acquisizioni degli immobili in AstaGiudiziaria e acquisti in Pre-Asta.
Rivolgersi al mercato delle Esecuzioni Immobiliari, seguendo il corretto protocollo Legale.

____________________________________________________


UBICAZIONE
Via Saturnino Piattella, 42 Latina LT
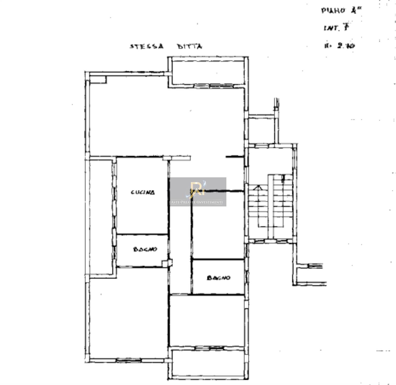
Appartamento edificio 1, interno 7, sito al quarto ed ultimo piano di un edificio dotato di ascensore. Costituito da ampia sala/pranzo (27,69 mq), cucina abitabile (11,84 mq), n° 2 bagni completi di cui uno dotato di vasca (4,99 mq e 5,18 mq), ripostiglio (6,36 mq), stanza da letto matrimoniale (20,89 mq), n°2 stanze da letto singole (10,73 mq e 11,48 mq) e n°3 balconi coperti.

_____________________________________________

POLIZZA ASSICURATIVA
“L’immobile è assicurabile in AstaGiudiziaria” - Acquista assicurando il tuo immobile, chiedi un preventivo per una polizza assicurativa contro furto e danni alle migliori Compagnie in contatto con il nostro studio, le quali sapranno fornire le migliori soluzioni.

____________________________________________________


ASTE PREASTE INVESTIMENTI srl

Opera con i propri clienti in un modo totalmente personalizzato, i nostri professionisti sono regolarmente iscritti, abilitati all'esercizio della professione, non semplici collaboratori, ma Consulenti Delegati Procuratori che potranno accompagnarvi e permettervi di raggiungere gli obiettivi che “vi siete prefissati”.
Saranno con voi dalle prime fasi fino alla consegna dell’immobile e saranno il vostro riferimento per qualunque aspetto inerente l'acquisto e la gestione del bene.
Forza, Cortesia, Professionalità, Esperienza, Solidità, Trasparenza sono solo alcune delle nostre caratteristiche e siamo certi di saper fare la differenza nel mercato immobiliare delle aste, in quanto per raggiungere lo scopo dei nostri assistiti rappresentiamo la "determinazione e sicurezza”.

____________________________________________________

ASTE PREASTE INVESTIMENTI Srl
Opera sulle basi di criteri e di linee guida fortemente improntati sull’analisi e sulla verifica costante della Struttura e dei Processi Organizzativi ad essa correlati, operando sempre con sguardo critico e attento al mercato immobiliare. Siamo sempre interessati a valutare figure professionali che possano essere compatibili con la nostra missione e obbiettivi.


ASTE PREASTE INVESTIMENTI Srl
È una struttura organizzata che stabilisce il percorso agendo per raggiungere obiettivi ambiziosi, e in quest’ottica poco spazio resta a chi, volendone far parte, non abbia reali e dimostrate capacità. “La qualità del servizio al cliente” è uno dei nostri punti di forza e pertanto, ogni sorta di collaborazione è strettamente correlata ad un livello di comunicazione e competenza il cui standard è qualitativamente l’eccellenza.

ASTE PREASTE INVESTIMENTI srl

Video

Mappa

Via Saturnino Piattella 42, Latina (LT)

Condividi

Richiedi informazioni

Invia

Ti consigliamo anche

153.324 €
Appartamento in vendita, Corso G. Matteotti, 82, Latina
2 Camere 1 Bagni 113 m2
interagisci con noi interagisci con noi Cookie preference