Appartamento in vendita, Via Giuseppe Mazzini, 87, Potenza

Appartamento in vendita, Via Giuseppe Mazzini, 87, Potenza

71.719 €
90 m2
Prossima asta 19/05/2026
Codice
4.1991.L5.190526 POTENZA
Città/Comune
Potenza
Categoria
Appartamento
Locali
4
Piano
1
Classe energetica
G
Stato Immobile
Buono
Grado
Medio
Lati Liberi
1
Arredi
Non Arredato
Tipo Cucina
Abitabile
Riscaldamento
Autonomo
Tipo Impianto
Radiatori
Fonte Energetica
Metano
Infissi
Legno
Accesso Disabili
No
AstaGiudiziaria - A.P.I.Srl
Riferimento 4.1991.L5.190526 POTENZA
Trattasi di Vendita Giudiziaria con l’Ausilio di A.P.I. Srl, studio di riferimento per le acquisizioni degli immobili in AstaGiudiziaria e acquisti in Pre-Asta.
Rivolgersi al mercato delle Esecuzioni Immobiliari, seguendo il corretto protocollo Legale.

____________________________________________________


UBICAZIONE
Via Giuseppe Mazzini, 87 Potenza PZ
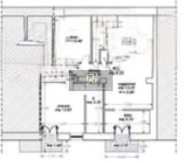
Appartamento sito al piano terra e piano seminterrato con accesso diretto da Via Rec. Nino Rota, con un box/autorimessa posto al piano seminterrato di Via Rec. Nino Rota. Il piano terra avente altezza interna di 2,80 metri si compone di: un vano adibito ad ingresso-soggiorno, cucina, n. 3 camere da letto, n. 2 bagni e n. 2 disimpegni, inoltre sono presenti n. 2 balconi a livello e n. 3 aree esterne. Internamente è presente una scala che immette al piano seminterrato il quale presenta un’altezza interna di 2,70 metri e si compine di n. 3 vani cantinati, bagno e ripostiglio. Al piano seminterrato è posto il box/autorimessa avente accesso indipendente e composto da un unico vano.

____________________________________________________

POLIZZA ASSICURATIVA
“L’immobile è assicurabile in AstaGiudiziaria” - Acquista assicurando il tuo immobile, chiedi un preventivo per una polizza assicurativa contro furto e danni alle migliori Compagnie in contatto con il nostro studio, le quali sapranno fornire le migliori soluzioni.

____________________________________________________


ASTE PREASTE INVESTIMENTI srl

Opera con i propri clienti in un modo totalmente personalizzato, i nostri professionisti sono regolarmente iscritti, abilitati all'esercizio della professione, non semplici collaboratori, ma Consulenti Delegati Procuratori che potranno accompagnarvi e permettervi di raggiungere gli obiettivi che “vi siete prefissati”.
Saranno con voi dalle prime fasi fino alla consegna dell’immobile e saranno il vostro riferimento per qualunque aspetto inerente l'acquisto e la gestione del bene.
Forza, Cortesia, Professionalità, Esperienza, Solidità, Trasparenza sono solo alcune delle nostre caratteristiche e siamo certi di saper fare la differenza nel mercato immobiliare delle aste, in quanto per raggiungere lo scopo dei nostri assistiti rappresentiamo la "determinazione e sicurezza”.

____________________________________________________


ASTE PREASTE INVESTIMENTI Srl
Opera sulle basi di criteri e di linee guida fortemente improntati sull’analisi e sulla verifica costante della Struttura e dei Processi Organizzativi ad essa correlati, operando sempre con sguardo critico e attento al mercato immobiliare. Siamo sempre interessati a valutare figure professionali che possano essere compatibili con la nostra missione e obbiettivi.


ASTE PREASTE INVESTIMENTI Srl
È una struttura organizzata che stabilisce il percorso agendo per raggiungere obiettivi ambiziosi, e in quest’ottica poco spazio resta a chi, volendone far parte, non abbia reali e dimostrate capacità. “La qualità del servizio al cliente” è uno dei nostri punti di forza e pertanto, ogni sorta di collaborazione è strettamente correlata ad un livello di comunicazione e competenza il cui standard è qualitativamente l’eccellenza.

ASTE PREASTE INVESTIMENTI srl

Mappa

Via Giuseppe Mazzini 87, Potenza (PZ)

Condividi

Richiedi informazioni

Invia

Ti consigliamo anche

65.775 €
Appartamento in vendita, Via Isca Degli Antichi, Potenza
1 Camere 1 Bagni 65,44 m2
interagisci con noi interagisci con noi Cookie preference