Appartamento in vendita, Via giannello, Ravenna

Appartamento in vendita, Via giannello, Ravenna

86.250 €
89 m2
Prossima asta 24/02/2026
Codice
27.2025.240226 RAVENNA
Città/Comune
Ravenna (Fornace Zarattini)
Categoria
Appartamento
Locali
3
Piano
Terra
Classe energetica
G
Stato Immobile
Buono
Grado
Medio
Tipo Cucina
Angolo Cottura
Riscaldamento
Autonomo
Fonte Energetica
Metano
Accesso Disabili
No
AstaGiudiziaria - A.P.I.Srl
Riferimento 27.2025.240226 RAVENNA
Trattasi di Vendita Giudiziaria con l’Ausilio di A.P.I. Srl, studio di riferimento per le acquisizioni degli immobili in AstaGiudiziaria e acquisti in Pre-Asta.
Rivolgersi al mercato delle Esecuzioni Immobiliari, seguendo il corretto protocollo Legale.

______________________________________________________


UBICAZIONE
Via Giannello, Fornace Zarattini - Ravenna RA
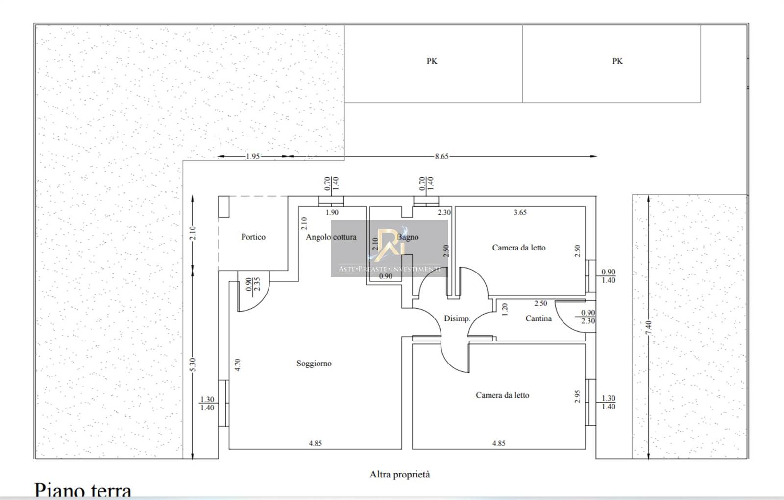
Appartamento con corte esterna composto al piano terra da: area porticata, soggiorno con angolo cottura, disimpegno, due camere da letto, bagno e cantina.
______________________________________________________

POLIZZA ASSICURATIVA
“L’immobile è assicurabile in AstaGiudiziaria” - Acquista assicurando il tuo immobile, chiedi un preventivo per una polizza assicurativa contro furto e danni alle migliori Compagnie in contatto con il nostro studio, le quali sapranno fornire le migliori soluzioni.

______________________________________________________


ASTE PREASTE INVESTIMENTI srl

Opera con i propri clienti in un modo totalmente personalizzato, i nostri professionisti sono regolarmente iscritti, abilitati all'esercizio della professione, non semplici collaboratori, ma Consulenti Delegati Procuratori che potranno accompagnarvi e permettervi di raggiungere gli obiettivi che “vi siete prefissati”.
Saranno con voi dalle prime fasi fino alla consegna dell’immobile e saranno il vostro riferimento per qualunque aspetto inerente l'acquisto e la gestione del bene.
Forza, Cortesia, Professionalità, Esperienza, Solidità, Trasparenza sono solo alcune delle nostre caratteristiche e siamo certi di saper fare la differenza nel mercato immobiliare delle aste, in quanto per raggiungere lo scopo dei nostri assistiti rappresentiamo la "determinazione e sicurezza”.

____________________________________________________

ASTE PREASTE INVESTIMENTI Srl
Opera sulle basi di criteri e di linee guida fortemente improntati sull’analisi e sulla verifica costante della Struttura e dei Processi Organizzativi ad essa correlati, operando sempre con sguardo critico e attento al mercato immobiliare. Siamo sempre interessati a valutare figure professionali che possano essere compatibili con la nostra missione e obbiettivi.


ASTE PREASTE INVESTIMENTI Srl
È una struttura organizzata che stabilisce il percorso agendo per raggiungere obiettivi ambiziosi, e in quest’ottica poco spazio resta a chi, volendone far parte, non abbia reali e dimostrate capacità. “La qualità del servizio al cliente” è uno dei nostri punti di forza e pertanto, ogni sorta di collaborazione è strettamente correlata ad un livello di comunicazione e competenza il cui standard è qualitativamente l’eccellenza.

ASTE PREASTE INVESTIMENTI srl

Video

Mappa

Via giannello , Ravenna (RA)

Condividi

Richiedi informazioni

Invia

Ti consigliamo anche

56.250 €
Appartamento in vendita, Via san mama, Ravenna
4 Camere 2 Bagni 128 m2
37.500 €
Appartamento in vendita, Via cesarea, 106, Ravenna
1 Camere 1 Bagni 61 m2
103.275 €
Appartamento in vendita, viale giotto, 51, Ravenna
2 Camere 2 Bagni 132 m2
interagisci con noi interagisci con noi Cookie preference