Appartamento in vendita, Via Giorgio Vigolo, 12, Roma

Appartamento in vendita, Via Giorgio Vigolo, 12, Roma

331.800 €
163 m2
Prossima asta 11/02/2026
Codice
929.2023.110226 ROMA
Città/Comune
Roma
Categoria
Appartamento
Locali
5
Box
1
Piano
5
Classe energetica
G
Stato Immobile
Buono
Grado
Medio
Arredi
Non Arredato
Tipo Cucina
Abitabile
Riscaldamento
Autonomo
Fonte Energetica
Metano
Accesso Disabili
No
AstaGiudiziaria - A.P.I.Srl
Riferimento 929.2023.110226 ROMA
Trattasi di Vendita Giudiziaria con l’Ausilio di A.P.I. Srl, studio di riferimento per le acquisizioni degli immobili in AstaGiudiziaria e acquisti in Pre-Asta.
Rivolgersi al mercato delle Esecuzioni Immobiliari, seguendo il corretto protocollo Legale.

____________________________________________________


UBICAZIONE
Via Giorgio Vigolo, 12, 00143 Roma RM
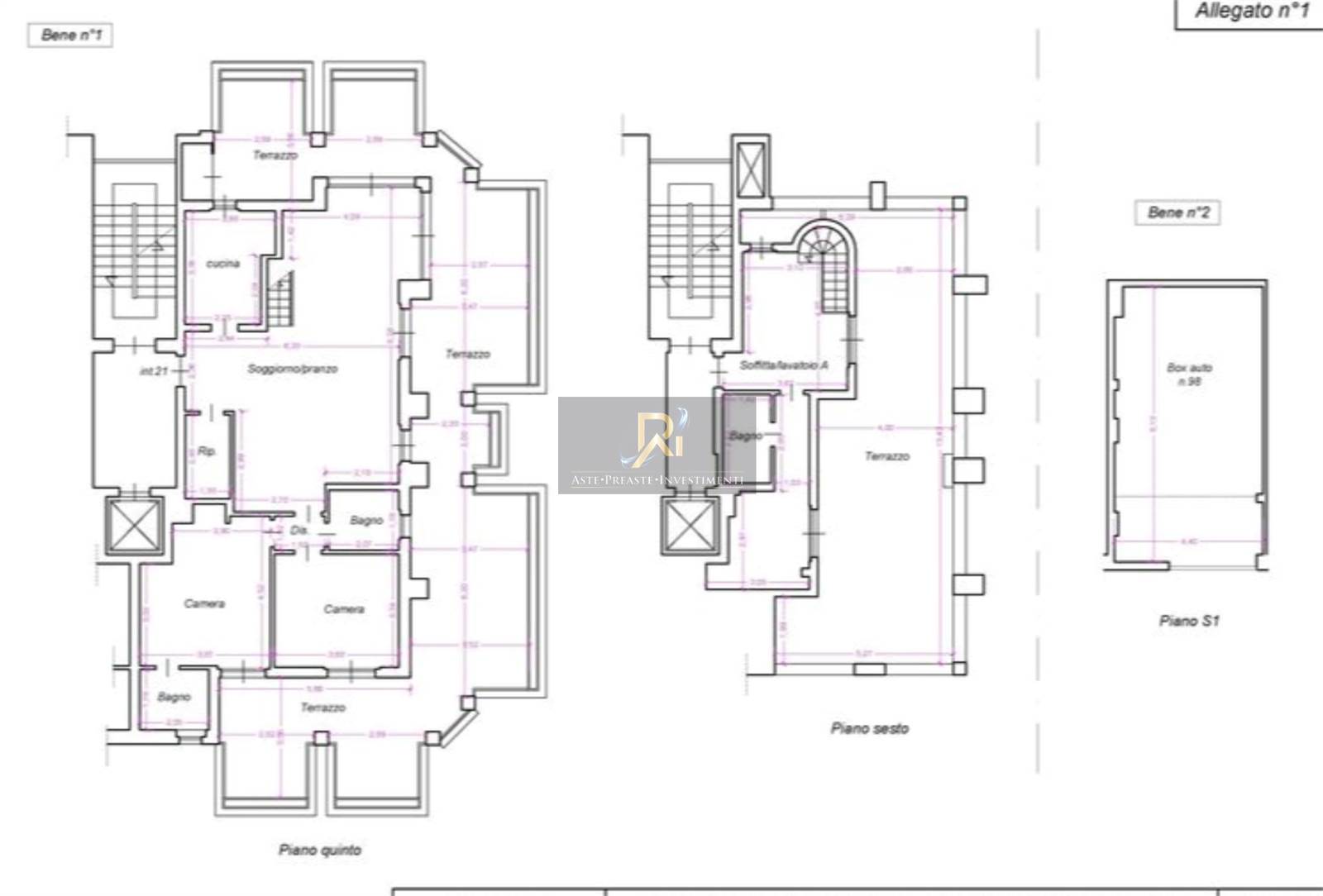
Appartamento con soffitta siti al piano 5-6, composto al piano inferiore di soggiorno, cucina, due camere, due bagni, ripostiglio (ex w.c.) e disimpegno nonché di un ampio terrazzo a livello; al piano sesto, raggiungibile tanto mediante una scala interna al soggiorno quanto mediante ingresso autonomo dal vano scala condominiale, si individua una soffitta costituita da due vani ed un bagno (da ripristinare), oltre ampio terrazzo a livello ad uso esclusivo. Box auto di proprietà.
____________________________________________________

POLIZZA ASSICURATIVA
“L’immobile è assicurabile in AstaGiudiziaria” - Acquista assicurando il tuo immobile, chiedi un preventivo per una polizza assicurativa contro furto e danni alle migliori Compagnie in contatto con il nostro studio, le quali sapranno fornire le migliori soluzioni.

____________________________________________________


ASTE PREASTE INVESTIMENTI srl

Opera con i propri clienti in un modo totalmente personalizzato, i nostri professionisti sono regolarmente iscritti, abilitati all'esercizio della professione, non semplici collaboratori, ma Consulenti Delegati Procuratori che potranno accompagnarvi e permettervi di raggiungere gli obiettivi che “vi siete prefissati”.
Saranno con voi dalle prime fasi fino alla consegna dell’immobile e saranno il vostro riferimento per qualunque aspetto inerente l'acquisto e la gestione del bene.
Forza, Cortesia, Professionalità, Esperienza, Solidità, Trasparenza sono solo alcune delle nostre caratteristiche e siamo certi di saper fare la differenza nel mercato immobiliare delle aste, in quanto per raggiungere lo scopo dei nostri assistiti rappresentiamo la "determinazione e sicurezza”.

____________________________________________________


ASTE PREASTE INVESTIMENTI Srl
Opera sulle basi di criteri e di linee guida fortemente improntati sull’analisi e sulla verifica costante della Struttura e dei Processi Organizzativi ad essa correlati, operando sempre con sguardo critico e attento al mercato immobiliare. Siamo sempre interessati a valutare figure professionali che possano essere compatibili con la nostra missione e obbiettivi.


ASTE PREASTE INVESTIMENTI Srl
È una struttura organizzata che stabilisce il percorso agendo per raggiungere obiettivi ambiziosi, e in quest’ottica poco spazio resta a chi, volendone far parte, non abbia reali e dimostrate capacità. “La qualità del servizio al cliente” è uno dei nostri punti di forza e pertanto, ogni sorta di collaborazione è strettamente correlata ad un livello di comunicazione e competenza il cui standard è qualitativamente l’eccellenza.

ASTE PREASTE INVESTIMENTI srl

Video

Mappa

Via Giorgio Vigolo 12, Roma (RM)

Condividi

Richiedi informazioni

Invia

Ti consigliamo anche

383.250 €
Appartamento in vendita, Via Lucrino, 43, Roma
3 Camere 2 Bagni 120 m2
133.073 €
Appartamento in vendita, Via dei Bonacolsi, 81, Roma
2 Camere 1 Bagni 60 m2
interagisci con noi interagisci con noi Cookie preference