Appartamento in vendita, Via Peloritani, 1, Santa Croce Camerina

Appartamento in vendita, Via Peloritani, 1, Santa Croce Camerina

48.450 €
65 m2
Prossima asta 10/02/2026
Codice
27.2025.L1.100226 RAGUSA
Città/Comune
Santa Croce Camerina
Categoria
Appartamento
Locali
3,5
Piano
1
Classe energetica
G
Stato Immobile
Buono
Grado
Medio
Lati Liberi
1
Arredi
Non Arredato
Tipo Cucina
Abitabile
Riscaldamento
Autonomo
Fonte Energetica
Metano
Infissi
Legno
Accesso Disabili
No
AstaGiudiziaria - A.P.I.Srl
Riferimento 27.2025.L1.100226 RAGUSA
Trattasi di Vendita Giudiziaria con l’Ausilio di A.P.I. Srl, studio di riferimento per le acquisizioni degli immobili in AstaGiudiziaria e acquisti in Pre-Asta.
Rivolgersi al mercato delle Esecuzioni Immobiliari, seguendo il corretto protocollo Legale.

____________________________________________________


UBICAZIONE
Località Casuzze; Via Peloritani, 1 – SANTA CROCE CAMERINA (RG)
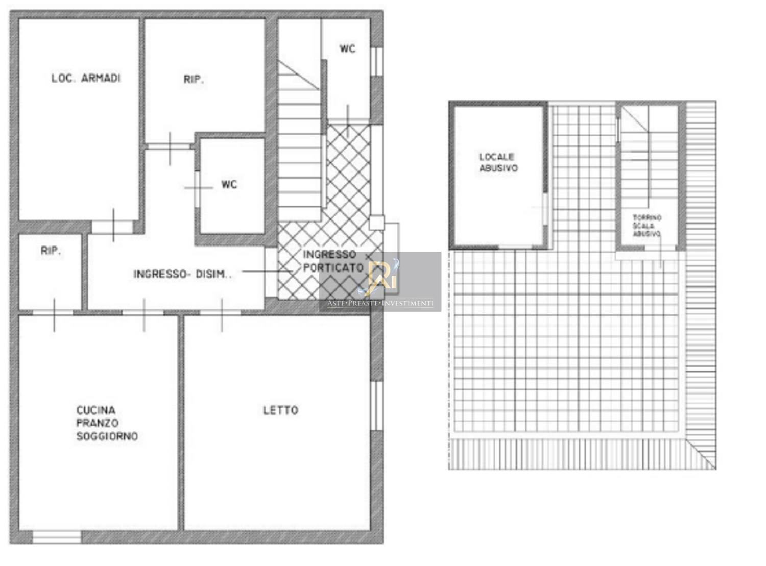
Piena proprietà di appartamento al piano terra di circa 59 mq. Consistenza: 3,5 vani. Composto da ingresso, cucina/pranzo/soggiorno, ripostiglio, due camere, ripostiglio, bagno, un piccolo bagno esterno nel sottoscala.

____________________________________________________


POLIZZA ASSICURATIVA
“L’immobile è assicurabile in AstaGiudiziaria” - Acquista assicurando il tuo immobile, chiedi un preventivo per una polizza assicurativa contro furto e danni alle migliori Compagnie in contatto con il nostro studio, le quali sapranno fornire le migliori soluzioni.

____________________________________________________


ASTE PREASTE INVESTIMENTI srl

Opera con i propri clienti in un modo totalmente personalizzato, i nostri professionisti sono regolarmente iscritti, abilitati all'esercizio della professione, non semplici collaboratori, ma Consulenti Delegati Procuratori che potranno accompagnarvi e permettervi di raggiungere gli obiettivi che “vi siete prefissati”.
Saranno con voi dalle prime fasi fino alla consegna dell’immobile e saranno il vostro riferimento per qualunque aspetto inerente l'acquisto e la gestione del bene.
Forza, Cortesia, Professionalità, Esperienza, Solidità, Trasparenza sono solo alcune delle nostre caratteristiche e siamo certi di saper fare la differenza nel mercato immobiliare delle aste, in quanto per raggiungere lo scopo dei nostri assistiti rappresentiamo la "determinazione e sicurezza”.

____________________________________________________


ASTE PREASTE INVESTIMENTI Srl
Opera sulle basi di criteri e di linee guida fortemente improntati sull’analisi e sulla verifica costante della Struttura e dei Processi Organizzativi ad essa correlati, operando sempre con sguardo critico e attento al mercato immobiliare. Siamo sempre interessati a valutare figure professionali che possano essere compatibili con la nostra missione e obbiettivi.


ASTE PREASTE INVESTIMENTI Srl
È una struttura organizzata che stabilisce il percorso agendo per raggiungere obiettivi ambiziosi, e in quest’ottica poco spazio resta a chi, volendone far parte, non abbia reali e dimostrate capacità. “La qualità del servizio al cliente” è uno dei nostri punti di forza e pertanto, ogni sorta di collaborazione è strettamente correlata ad un livello di comunicazione e competenza il cui standard è qualitativamente l’eccellenza.

ASTE PREASTE INVESTIMENTI srl

Video

Mappa

Via Peloritani 1, Santa Croce Camerina (RG)

Condividi

Richiedi informazioni

Invia
interagisci con noi interagisci con noi Cookie preference