AsteGiudiziarie Delegati Procuratori
Toggle navigation
Acquista
firma digitale e pec
Home
Auctions
About us
Services
Video
Work with us
Deposito
offerte telematiche
Auctions
Auctions
Region
All
City/Municipality
Quarter
Category
Any
1br. apartment
2br. apartment
3br. or more apartment
Agricultural land
Apartment
Attic
Boat Place
Building land
Castle
Cellar
Chalet
Duplex
Estate
Family Villa
Farm
Garage
Hotel
Laboratory
Land
Loft
Maisonette
Mansard
Office
Palace
Parking Place
Portion of villa
Rustic
Semi-Detached House
Shed
Shop
Single house
Studio/flat
Terraced house
Villa
Warehouse
Price (from - to)
Sqm (from - to)
Code
Order
Insert
Code
Category
City/Municipality
Quarter
Price
Square Meters
Search
Apartment for sale, Borgo degli argonauti, Pisticci
45,841 €
44 m
2
Next auction
30/04/2026
Previous
Next
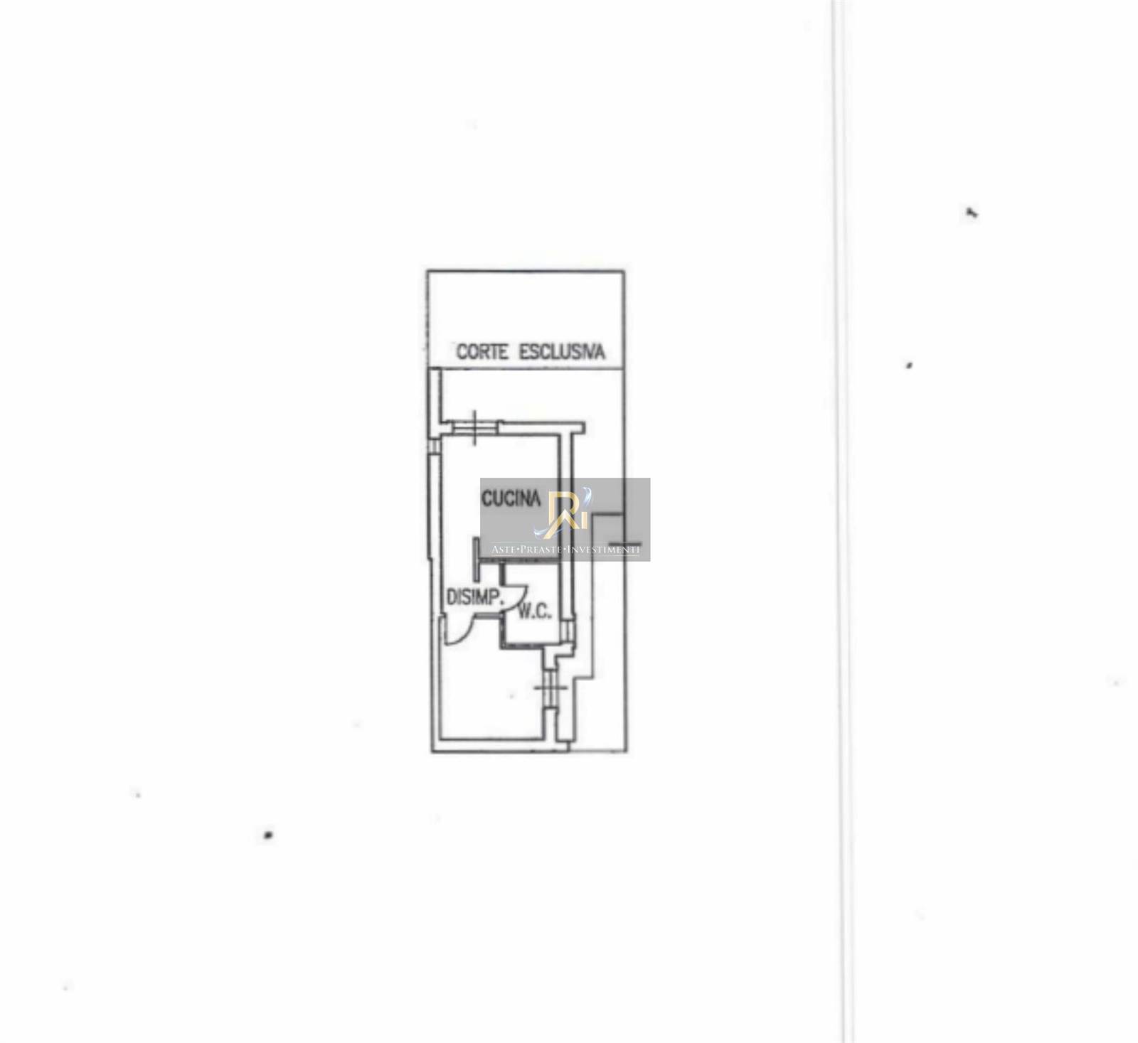
Photos
Floorplans
Map
Code
44.2024.L1.300426 MATERA
City/Municipality
Pisticci
Category
Apartment
Locals
2
Floor
Ground floor
Energetic class
G
Property Conditions
Good
Rank
Medium
Free Sides
3
Garden
Private
Furniture
Not Furnished
Kitchen
Open Kitchen
Heating
Independent
Type of heating system
Radiator heating
Energy source
Natural Gas Heating
Fixtures
Wood
Access for disabled
No
Map
Borgo degli argonauti , Pisticci (MT)
Options
Print Property sheet
Send property sheet by mail
Schedule a visit
Share
Tweet
Contattaci su WhatsApp
Information request
Name *
Phone *
E-mail *
Request Details *
I authorize the processing of my personal data according Regolamento UE n. 679/2016
Privacy Policy
Autorizzo al trattamento dei dati per finalità di marketing, attività promozionali, offerte commerciali ed indagini di mercato.
Send
We also recommend
Apartment for sale, Via Pietro Nenni, 23, Pisticci
39,975 €
4 Bedrooms
2 Bathrooms
132 m
2
Apartment for sale, via nausicaa, 1, Pisticci
65,355 €
2 Bedrooms
1 Bathrooms
53 m
2
Apartment for sale, Pisticci
139,386 €
3 Bedrooms
2 Bathrooms
82 m
2
interagisci con noi
interagisci con noi
Keep default settings X
Use of cookies
This site uses cookies. Our (own) cookies and those of our Partners (third party cookies) are used to offer you a unique experience with us. For this reason, together with our partners, we collect and process non-sensitive information (such as the identifier of your device or the pages you visit).
At any time you can delete, modify or verify the information you share in
Cookie preference
or in our
Cookie Policy
and
Privacy Policy
.
Necessary
Functional
Profiling
Analytics
Accept all
Decline all
Accept selected
Cookie preference